aquabit

Irina Ilieva
Dipl.-Ing. Architekt

Auguststrasse 35, 10119 Berlin
fon: 0049/(0)30/260 36 477 | email: ilieva(at)aquabit.com | internet: www.arch.aquabit.com


» Leistungen und Profil  
» Architekturprojekte  
» Kontakt/Impressum/Datenschutz  

 
Auswahl Projekte
 




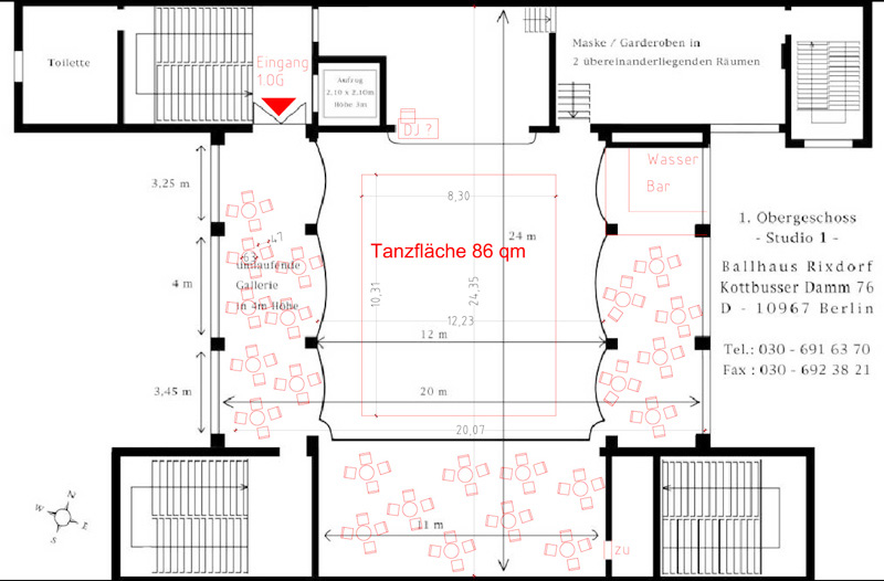
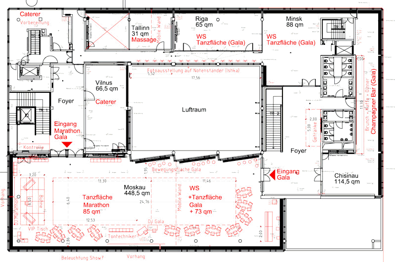
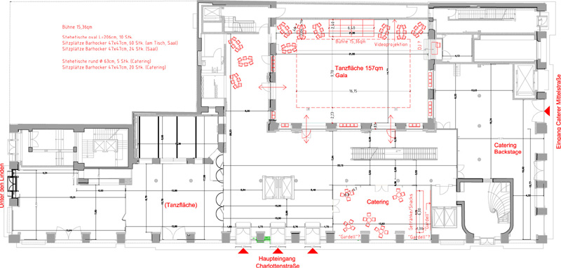
Licht und Raumkonzept für Internationales Tangofestival in Berlin
Café Moskau, Rotes Rathaus, Palazzo Italia, Ballhaus Rixdorf

Besonderheiten
- Licht und Raumkonzept für vier Ballsäle mit Bereichen für Tänzer/Livemusik/Lounge
- Konzept Messestände für die begleitende Messe
- Raumdekoration

Ausführung
2013

Leistungen
Raumkonzept mit Skizzen der Raumordnung
Koordination zwischen Festivalleitung/Ton/Licht/Veranstaltungsort
Begleitung bei der Ausführung

Bauherr
Festivalleitung

Fotos
René Löffler