aquabit

Irina Ilieva
Dipl.-Ing. Architekt

Auguststrasse 35, 10119 Berlin
fon: 0049/(0)30/260 36 477 | email: ilieva(at)aquabit.com | internet: www.arch.aquabit.com


» Leistungen und Profil  
» Architekturprojekte  
» Kontakt/Impressum/Datenschutz  

 
Auswahl Architekturprojekte
in Zusammenarbeit mit KLOTZBACH Architekten + Ingenieure
 
Modernisierung und Instandsetzung Mietshaus
Winsstraße 47, 10405 Berlin / LP 1-5, 8
Baujahr
2014-2018

Leistungen
- Bestandsaufnahme, Flächenberechnung
- Vorplanung, Skizzen, Varianten
- Genehmigungsplanung
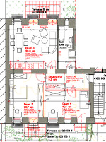
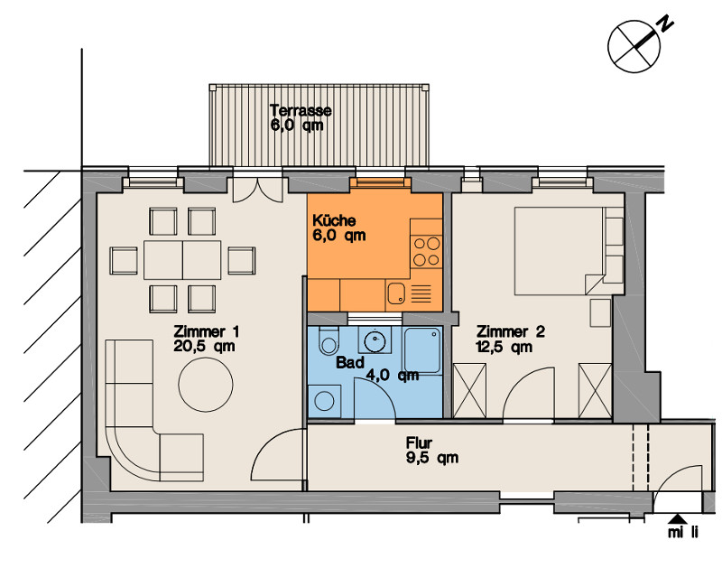
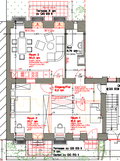
- Detailplanung für Einzelwohnungen, Bäder und Küchen, Balkonanbau
- Gewerbliche Nutzungsänderung
- Kostenübersichten
- Unterstützung und Koordination der verschiedenen Baufirmen vor Ort
- Erstellung von Verkaufsunterlagen
- 2,361 qm Nutzfläche

Bauherr
privat